NONE STREET, ALTAMONTE SPRINGS, FL 32714

Município: Seminole | Condomínio:
NONE STREET, ALTAMONTE SPRINGS, FL 32714
MLS#: O6352464
ENTRE EM CONTATO
Município: Seminole | Condomínio:
NONE STREET, ALTAMONTE SPRINGS, FL 32714
MLS#: O6352464
ENTRE EM CONTATO
Preço
U$75,000
Ativo
Ativo
Entrou no mercado:
14/10/2025
Dias no mercado:
197
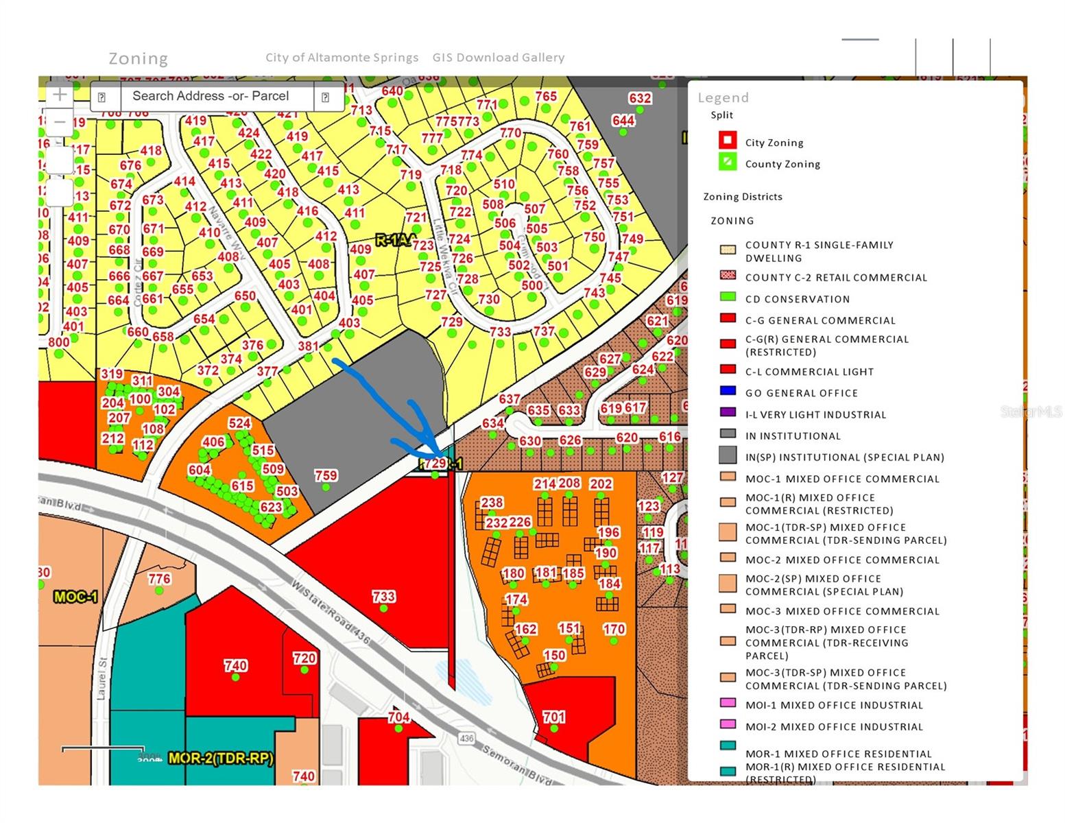
Localização
Localização
Stellar MLS
IDX information is provided exclusively for consumers’ personal, non-commercial use and may not be used for any purpose other than to identify prospective properties consumers may be interested in purchasing. Information is deemed reliable but is not guaranteed. This linting is presented by Kharis Real Estate Group Llc - 561-510-6087. Authentic Real Estate Team can represent you in any real estate transaction in the state of Florida.
Inscreva-se em nossa Newsletter
Mantenha-se atualizado com as últimas notícias, tendências, comunidades, ofertas especiais e muito mais
LIGAR AGORA
Brasil
BRASIL
11 4560.3544
Estados Unidos
ESTADOS UNIDOS
+1 407 900.2434
CANCELAR
1
Loading
Atenção
Confirma o envio da mensagem?
Não
Sim