161 TRANQUIL MIRROR LAKE COURT UNIT Lot 9, CLERMONT, FL 34711

Município: Lake | Condomínio: MIRROR LAKE
161 TRANQUIL MIRROR LAKE COURT UNIT Lot 9, CLERMONT, FL 34711
MLS#: O6391872
ENTRE EM CONTATO
Município: Lake | Condomínio: MIRROR LAKE
161 TRANQUIL MIRROR LAKE COURT UNIT Lot 9, CLERMONT, FL 34711
MLS#: O6391872
ENTRE EM CONTATO
Preço
U$2,393,268
Ativo
Ativo
Quartos:
5
Banheiros:
5
Área útil:
413 M²
Construído em:
2027
Mobílias:
Sem mobília
Entrou no mercado:
27/03/2026
Dias no mercado:
25
FINANCIAMENTO
ENTRADA
IPTU (Ano)
Seguro (Ano)
Principal & Juro
PMI
Mensalidade
Mensalidade
Fechar
FECHAR
Localização
Localização
Featured Information
Principais informações
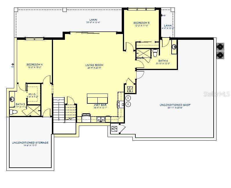
Tipo da propriedade: Single Family Residence
Nova construção: Sim
Área útil: 413 M²
Área total: 667 M²
Área total em acres: 0.32
Valor em square feet: U$538
Piscina: Private
Garagem: Sim
Garagem (Espaços): 2
Aceita Pet: Sim
O imóvel pode ser alugado: Sim
Período mínimo de locação: 7 Months
Venda especial: None
Property Information
Informações da propriedade
IPTU anual: U$3,002
Ano base do IPTU: 2025
CDD: Não
Zoneamento:
Andares da propriedade: Two
Tamanho do lote em acre: 0.32
Tamanho do lote em square feet: 1.290
Existe locatário: Não
Valor de condomínio mensal: U$42
Ar-condicionado: Central Air
Aquecimento elétrico/óleo: Electric
Lareira: Não
Fonte de área útil: Builder
Características da lavanderia: Inside
Eletrodomésticos incluídos: Dishwasher, Microwave, Range, Refrigerator
Tipo de piso: Tile
Características internas: Eat-in Kitchen, Open Floorplan
Construção externa: Block
Telhado: Tile
Fundação: Slab
Piscina: Above Ground
Tipo de pavimentação: Paved
Características externas: Other
Serviços de utilidade pública: Electricity Available, Natural Gas Available, Water Available
Data da listagem: 27/03/2026
Preço original: U$2,393,268
Community Information
Informações do condomínio
Condomínio: MIRROR LAKE
Características do condomínio: Gated Community - No Guard
Aprovação do condomínio necessária: Não
Taxa de condomínio: Sim
Forma de pagamento do condomínio: Annually
Taxa de condomínio: U$500 / Required
Taxas totais anuais de condomínio: U$500
Habitação para idosos (55+): Não
Restrições de locação: Sim
Tempo de carência antes da locação necessária: Não
Escola primária: Grassy Lake Elementary
Ensino fundamental: East Ridge Middle
Ensino médio: Lake Minneola High
Stellar MLS
IDX information is provided exclusively for consumers’ personal, non-commercial use and may not be used for any purpose other than to identify prospective properties consumers may be interested in purchasing. Information is deemed reliable but is not guaranteed. This linting is presented by Resolute Development Group, Llc - 407-217-2277. Authentic Real Estate Team can represent you in any real estate transaction in the state of Florida.
Inscreva-se em nossa Newsletter
Mantenha-se atualizado com as últimas notícias, tendências, comunidades, ofertas especiais e muito mais
LIGAR AGORA
Brasil
BRASIL
11 4560.3544
Estados Unidos
ESTADOS UNIDOS
+1 407 900.2434
CANCELAR
1
Loading
Atenção
Confirma o envio da mensagem?
Não
Sim